W- Store for TCNS, 4 Sites in NCR

PROJECT BRIEF

 

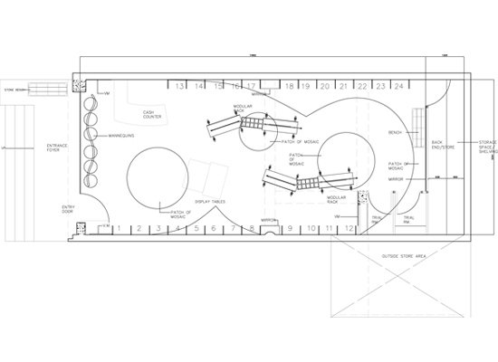
A bright white setting is created for this Indian-wear retail chain whose main business concept has been to display the entire product range as per various sizes, such that the customer can pick and choose on its own. Hence, the products effectively become a part of the interior design here, as they contribute the vital colour and vivacity to this store. Services are left exposed and lighting is entirely surface mounted- each contributing to the scheme in their own subtle way.

 

PROJECT FACTS:

AREA - 4000 Sq. Ft. each
COST - INR 5 Million per Store
DESIGN ARCHITECT- Incubis Consultants (P) Ltd.
ANKITA'S ROLE - Architect