Digital Hub (India), DELHI - Building Adaptation

PROJECT BRIEF

 

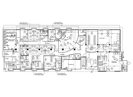
A derelict textile industry is purchased by a multi-national BPO to convert it into a 250- seat Call Centre. A new floor slab is laid between the double heighted machine hall of the previous industry; and toilet blocks, staircases and other elements are built to adapt the building to its new use. Further, the facade is modified to reflect identity of its new occupiers. The design creates a bright and functional environment.

 

PROJECT FACTS:

AREA - 27,000 Sq. Ft.
COST - INR 20 Million
DESIGN ARCHITECT- AAS Design Solutions (P) Ltd.
ANKITA'S ROLE - Chief Designer